
Interior Fit Out Contractor Bangkok
Contextual Background
Central Park Offices sits at the corner of Silom / Rama IV and overlooks Lumpini Park — one of Bangkok’s most prestigious addresses.
The building specification supports high-performance workspace: Class A standards, LEED/WELL and WiredScore potentials, flexible floor-plates and superb connectivity. In this context, our concept positions the space as the premium tier – not simply an office but a place of destination for the modern global professional.
By shifting from fixed desk ownership to curated destination zones, we appeal to executives who travel, collaborate across geographies and expect high-value experience.
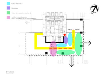
The view-rich alcoves and lounge zones deliver exclusivity and status. The efficient floor-plate layout aligns with performance metrics: productivity, agility and brand prestige.
350
sqm
floor area
0.25
months
time on site
Interior Design and Fit Out Competition
Commercial
0
months
warranty
Design Approach
The starting point was the distinctive architecture of Central Park Offices: large typical floor-plates (1,350-2,260 m² depending zone) with sweeping views of Lumpini Park and strong connectivity.
The façade geometry creates natural alcoves — we transformed these into premium drop-down work zones and collaboration niches with direct park views. Discarding the fixed desk model, the workspace becomes a destination environment: lounge settings, touchdown pods, quiet focus zones, all curated for movement, flexibility and premium experience.
This strategy is aligned with contemporary research on evolving workplace culture:
The value of destination workspaces in legal and professional settings.
The shifting dynamics of talent, collaboration, and experience in modern offices. Key design drivers:
Maximise view value via façade articulation
Encourage agile collaboration and spontaneous interaction
Use refined materiality to signal luxury rather than commodity
Clear circulation, minimal wasted space
Position work as an experience, not a default chore
We analysed multiple configurations, in relation to workspace maxismisation, views, issues of thermal and visual comfort, locker storage.
Key design drivers
- Maximising view value: every alcove connects back to the park-edge or skyline
- Flexible occupancy model: catering to mobile executives and HNW clients
- High-end finishes & brand expression: materials and lighting speak quality
- Efficient floor-plate utilisation: minimising wasted circulation, optimising sight-lines
- Destination experience: a workplace that feels more club than office We didn't win the competition :(
The client was seeking in the end a more traditional office type arrangement. However, are very pleased with what we achieved in such a short time.
Scope
Concept design including spatial layout and workplace strategy
Façade-impact analysis to exploit natural daylight and views
Premium finish and brand-quality specification
Destination zones: collaborative lounge, touchdown pods, flexible work settings
Delivery of visuals, diagrams and floor-plan within 7 days
Study on new furniture types for fluid working
Pricing for delivery









](https://static.wixstatic.com/media/18035a_098ba74565794001bb1bafa54bdc62e0~mv2.jpg/v1/fill/w_489,h_346,q_90,enc_avif,quality_auto/18035a_098ba74565794001bb1bafa54bdc62e0~mv2.jpg)




















